Back to Search
24 East Otterson St, Nashua, NH 03060
24 East Otterson St, Nashua, NH 03060
24 East Otterson St, Nashua, NH 03060
24 East Otterson St, Nashua, NH 03060
24 East Otterson St, Nashua, NH 03060
24 East Otterson St, Nashua, NH 03060

24 East Otterson St Nashua, NH 03060

$1,275,000

ACTIVE
Beds
Baths
Sqft
Acres
0.47
Year
Days on Site
22
Property Type
Land
Sub Type
Per Square Foot
$1,275,000
Date Listed
Jan 16, 2026

Description of 24 East Otterson St, Nashua, NH 03060

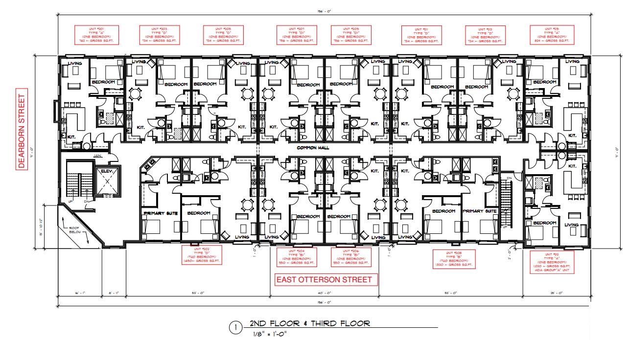
Listing details for 24 East Otterson St, Nashua, NH 03060 : ATTENTION DEVELOPERS!!!  Here is a RARE opportunity for a Planning board approved condo development in downtown Nashua! This 0.467-acre building lot is approved by the Nashua planning board for a 40-unit condominium/ apartment building, consisting of thirty-five one-bedroom units (950–1,020 sq ft), and four two-bedroom units (1,530 sq ft), and one studio unit at (590 sq ft). The building design also includes 30 enclosed parking spaces on the ground level. Prime location just two blocks from Southern New Hampshire Medical Center, close to major shopping, public parking garages, and less than five minutes from Route 3.  21 e has been completed and is clean. Architectural and engineering plans, along with 21e are included with sale. Development-ready properties like this are extremely rare— don't miss your chance to bring this project to life!
Listing Updated : 01-16-2026 at 01:08 PM EST
Home Details
24 East Otterson St, Nashua, NH 03060
Status
Active
MLS #ID
5056118
Price
$1,275,000
Bedrooms
Bathrooms
Square Footage
Acres
0.47
Year
Days on Site
22
Property Type
Land
Property Sub Type
Price per Sq Ft
$0
Date Listed
Jan 16, 2026
Community Information for 24 East Otterson St, Nashua, NH 03060
Address
24 East Otterson St
State
New Hampshire
Zip Code 03060
Subdivision
Schools
Utilities
Sewer
Public Sewer at Street
Water Source
Public Water at Street
Interior
Fireplace
No
Exterior
Roof
Foundation
HOA
Has HOA
None
Additional Information
Styles
Price per Sq Ft
$0
Source

PrimeMLS, MLS#: 5056118

Comments
Home Worth Check

Interested in 24 East Otterson St, Nashua NH, 03060?

By proceeding, you consent to receive calls, texts and voicemails at the number you provided (may be recorded and may be autodialed and use prerecorded and artificial voices), and email, from Bean Group | eXp Realty about your inquiry and other home-related matters. Msg/data rates may apply. This consent applies even if you are on a do not call list and is not a condition of any purchase.

Location of 24 East Otterson St, Nashua, NH 03060

Google Map
Mortgage Calculator
Listing Price
Down Payment
Interest Rate
This beautiful home is located at 24 East Otterson St, Nashua, NH 03060 and is listed for sale at $1,275,000.00. This home was built in , contains square feet of living space, and sits on a 0.47 acre lot. This residential home is priced at $0.00 per square foot.

If you'd like to request a tour or more information on 24 East Otterson St, Nashua, NH 03060, please call us at (603) 766-1980 so that we can assist you in your real estate search. To find homes like 24 East Otterson St, Nashua, NH 03060, you can search homes for sale in Nashua , or by 03060 . We are here to help when you're ready to contact us!

Schools Near 24 East Otterson St, Nashua, NH 03060

Home Details
24 East Otterson St, Nashua, NH 03060
Status
Active
MLS #ID
5056118
Price
$1,275,000
Bedrooms
Bathrooms
Square Footage
Acres
0.47
Year
Days on Site
22
Property Type
Land
Property Sub Type
Price per Sq Ft
$0
Date Listed
Jan 16, 2026
Community Information for 24 East Otterson St, Nashua, NH 03060
Address
24 East Otterson St
State
New Hampshire
Zip Code 03060
Subdivision
Schools
Utilities
Sewer
Public Sewer at Street
Water Source
Public Water at Street
Interior
Fireplace
No
Exterior
Roof
Foundation
HOA
Has HOA
None
Additional Information
Styles
Price per Sq Ft
$0
Source

PrimeMLS, MLS#: 5056118

Comments

Homes Similar to 24 East Otterson St, Nashua, NH 03060

HomeNashua