Back to Search
4 Lucy Ln, Peterborough, NH 03458
4 Lucy Ln, Peterborough, NH 03458
4 Lucy Ln, Peterborough, NH 03458
4 Lucy Ln, Peterborough, NH 03458
4 Lucy Ln, Peterborough, NH 03458
4 Lucy Ln, Peterborough, NH 03458
4 Lucy Ln, Peterborough, NH 03458

4 Lucy Ln Peterborough, NH 03458

$289,000

ACTIVE
Beds
2
Baths
2
Sqft
1,064
Acres
Year
2026
Days on Site
22
Property Type
Residential
Sub Type
Condominium
Per Square Foot
$272
Date Listed
Jan 16, 2026

Description of 4 Lucy Ln, Peterborough, NH 03458

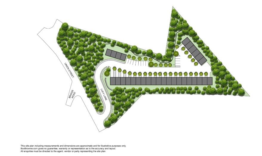
Listing details for 4 Lucy Ln, Peterborough, NH 03458 : Welcome to Our Town Village, a brand-new townhome community coming to Peterborough, New Hampshire, with first homes ready for occupancy in Spring 2026. Designed for comfort, style, and energy efficiency, these 2-bedroom, 1.5-bath townhomes combine modern finishes with a low-maintenance lifestyle in the heart of the Monadnock Region. The open-concept kitchen and dining area flow into a spacious living room, ideal for entertaining or everyday living. The first floor also features a powder room, generous closet space, and direct access to a ground level garage in select units. Upstairs offers two bright bedrooms, a full bath with direct access from the primary bedroom, and a dedicated laundry room with additional storage space. Located just minutes from downtown Peterborough, residents will enjoy easy access to shops, restaurants, and cultural attractions, plus year-round outdoor recreation including hiking, biking, and nearby Mount Monadnock. Within walking distance, you’ll find grocery stores, coffee shops, the town library, parks, and scenic riverside trails, making it easy to enjoy the best of small-town living without getting in the car. Quality construction, thoughtful layouts, and a desirable location make Our Town Village one of the best values for new construction in southern New Hampshire. Do not miss your opportunity to own a brand-new home in this vibrant and unique community.
Listing Updated : 02-07-2026 at 02:04 AM EST

Open Houses

7
Sat, February
9:30 AM - 11:00 AM
Home Details
4 Lucy Ln, Peterborough, NH 03458
Status
Active
MLS #ID
5061702
Price
$289,000
Bedrooms
2
Bathrooms
2
Square Footage
1,064
Acres
Year
2026
Days on Site
22
Property Type
Residential
Property Sub Type
Condominium
Price per Sq Ft
$272
Date Listed
Jan 16, 2026
Community Information for 4 Lucy Ln, Peterborough, NH 03458
Address
4 Lucy Ln
State
New Hampshire
Zip Code 03458
Subdivision
Utilities
Sewer
Public Sewer
Water Source
Public
Interior
Interior Features
Kitchen Island, Master BR w/ BA, Walk-In Closet(s) and 2nd Floor Laundry
Appliances
Dishwasher, Dryer, Microwave, Electric Range, Refrigerator and Washer
Heating
Electric and Heat Pump
Cooling
Central Air
Fireplace
No
Exterior
Roof
Asphalt Shingle
Foundation
Concrete
HOA
Has HOA
None
Additional Information
Styles
Townhouse
Price per Sq Ft
$272
Source

PrimeMLS, MLS#: 5061702

Comments
Home Worth Check

Interested in 4 Lucy Ln, Peterborough NH, 03458?

By proceeding, you consent to receive calls, texts and voicemails at the number you provided (may be recorded and may be autodialed and use prerecorded and artificial voices), and email, from Bean Group | eXp Realty about your inquiry and other home-related matters. Msg/data rates may apply. This consent applies even if you are on a do not call list and is not a condition of any purchase.

Location of 4 Lucy Ln, Peterborough, NH 03458

Google Map
Mortgage Calculator
Listing Price
Down Payment
Interest Rate
This beautiful 2 beds 2 baths home is located at 4 Lucy Ln, Peterborough, NH 03458 and is listed for sale at $289,000.00. This home was built in 2026, contains 1064 square feet of living space, and sits on a acre lot. This residential home is priced at $271.62 per square foot.

If you'd like to request a tour or more information on 4 Lucy Ln, Peterborough, NH 03458, please call us at (603) 766-1980 so that we can assist you in your real estate search. To find homes like 4 Lucy Ln, Peterborough, NH 03458, you can search homes for sale in Peterborough , or by 03458 . We are here to help when you're ready to contact us!

Schools Near 4 Lucy Ln, Peterborough, NH 03458

Home Details
4 Lucy Ln, Peterborough, NH 03458
Status
Active
MLS #ID
5061702
Price
$289,000
Bedrooms
2
Bathrooms
2
Square Footage
1,064
Acres
Year
2026
Days on Site
22
Property Type
Residential
Property Sub Type
Condominium
Price per Sq Ft
$272
Date Listed
Jan 16, 2026
Community Information for 4 Lucy Ln, Peterborough, NH 03458
Address
4 Lucy Ln
State
New Hampshire
Zip Code 03458
Subdivision
Utilities
Sewer
Public Sewer
Water Source
Public
Interior
Interior Features
Kitchen Island, Master BR w/ BA and Walk-In Closet(s)
Appliances
Dishwasher, Dryer, Microwave, Electric Range and Refrigerator
Heating
Electric and Heat Pump
Cooling
Central Air
Fireplace
No
Exterior
Roof
Asphalt Shingle
Foundation
Concrete
HOA
Has HOA
None
Additional Information
Styles
Townhouse
Price per Sq Ft
$272
Source

PrimeMLS, MLS#: 5061702

Comments

Homes Similar to 4 Lucy Ln, Peterborough, NH 03458

HomePeterborough