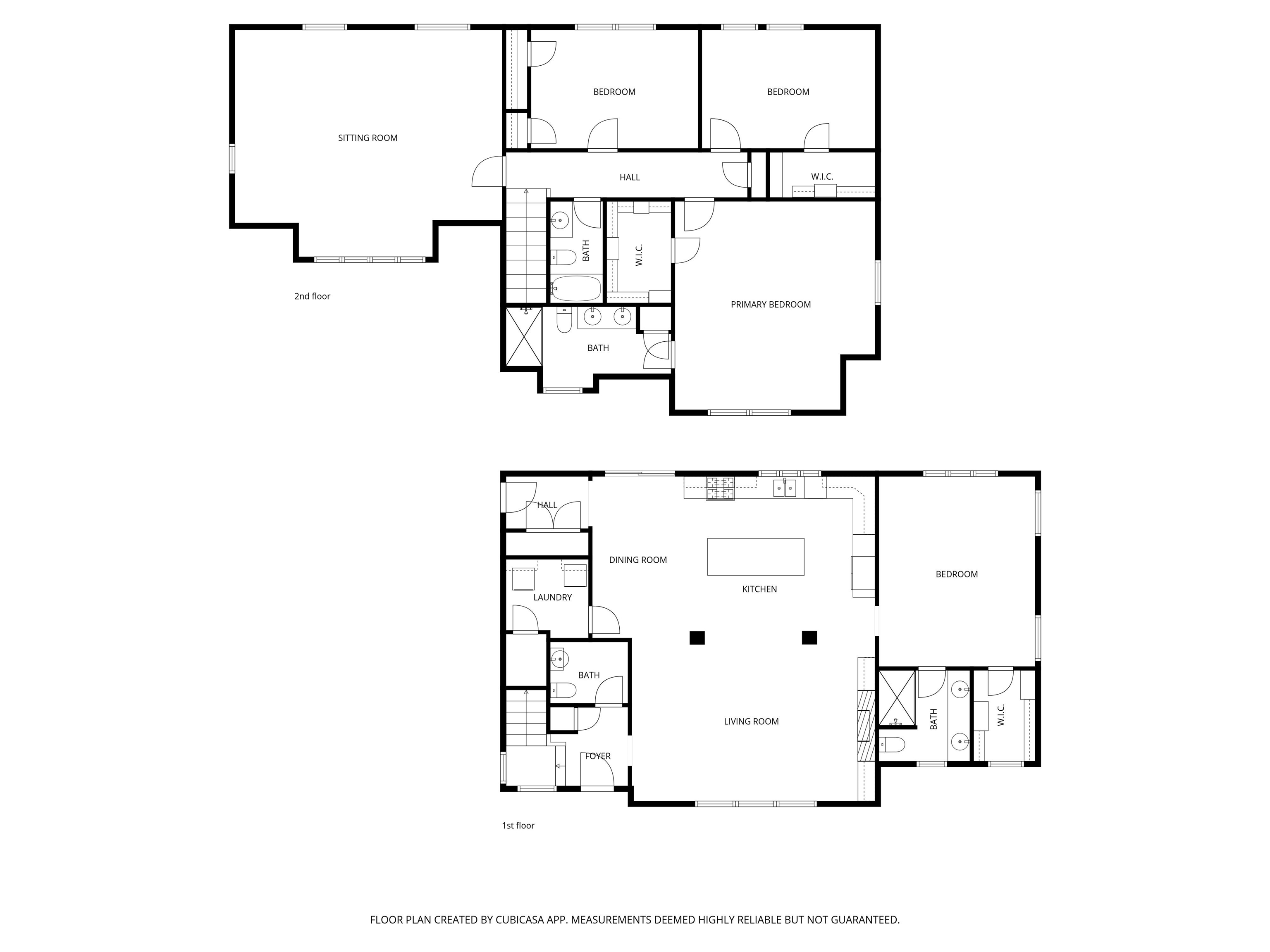
Open: Sat 11:00 AM - 1:00 PM > $1,093,500 Active 4Beds4Baths2935Sqft2.57Acres 6 Odell Dr, Amherst, NH 03031 MLS#: 5084682